• Top
  • プラン例と価格

プラン例と価格のめやす

Design plan

plan.01

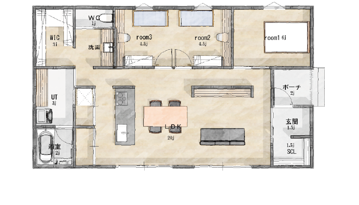
家族3人で丁度いい平屋

ご夫婦とお子様の3人暮らしに丁度よいプラン。
玄関→ウォークインクローゼット→洗面が繋がることで
外出時も帰宅時もスムーズになる家事楽動線です。

2LDK

延床面積:67.07㎡(20.29坪)

建物参考価格1,750万円〜

こだわりの仕様

無垢床材/樹脂サッシ窓/Low-Eガラス/
オール電化/ガルバリウム鋼板屋根/断熱ドア/
第一種24時間換気/ベタ基礎配筋200mm/
フルハイトドア

plan.02

4人家族でゆったり暮らす平屋

お子様の成長は早いものの
部屋が必要になるまで時間がかかります。
そこで幼少期には子供部屋はあえて仕切らず、
必要な時期に部屋を分けることができる仕様に。
廊下を無くすことで広いLDKを確保した
シンプルで暮らしやすい動線のプランです。

3LDK

延床面積:89.43㎡(27.05坪)

建物参考価格2,300万円〜

こだわりの仕様

無垢床材/樹脂サッシ窓/Low-Eガラス/
オール電化/ガルバリウム鋼板屋根/断熱ドア/
第一種24時間換気/ベタ基礎配筋200mm/
フルハイトドア

plan.03

2階リビングの家

LDKを2階に配置する事で広さを確保。
1階には各個室とワークスペースとして使える書斎を配置。
ファザードに窓を配置しない
シンプルで洗練された外観も魅力です。

3SLDK

延床面積: 1F(46.37㎡)14.02坪
延床面積: 2F(43.88㎡)13.27坪

建物参考価格2,300万円〜

こだわりの仕様

無垢床材/樹脂サッシ窓/Low-Eガラス/
オール電化/ガルバリウム鋼板屋根/断熱ドア/
第一種24時間換気/ベタ基礎配筋200mm/
フルハイトドア

plan.04

2世帯で快適に暮らす家

親世帯を1階、子世帯を2階に配置。
1階リビングに畳スペースをフラットに配置する事で
LDKに広さと一体感が生まれ、
2世帯が同じ食卓を囲むことができます。
2階には子世帯が気兼ねなく過ごせるサブリビングも。
あえて仕切らないことで広く使える子供部屋は、
必要な時期に2部屋に分けることができます。

3SLDK

延床面積: 1F(72.04㎡)21.79坪
延床面積: 2F(43.06㎡)13.02坪

建物参考価格2,900万円〜

こだわりの仕様

無垢床材/樹脂サッシ窓/Low-Eガラス/
オール電化/ガルバリウム鋼板屋根/断熱ドア/
第一種24時間換気/ベタ基礎配筋200mm/
フルハイトドア

About Us

スタイラスのこと

  • 家づくりのながれ
  • Q & A
  • 会社概要・ショールーム
  • スタッフ紹介
  • 無料相談会
  • モデルハウス

お電話でのお問い合わせはこちら

tel.0965-62-8560

(受付時間 10:00〜18:00)

しつこい売込みや訪問等は一切いたしませんのでご安心してご相談ください。

Access